-
文件格式:pptx
文件大小:213.92MB
-
资料类型:施工方案
-
施工类型:土建施工
-
文档格式:PPT
一线成果PPT
文档内容:前言、示范区规划详解、示范区前场详解、示范区主场详解、示范区后场详解。文档页数:103页
设计时间:2023

目录



示范区设计说明

基地中轴

人行参观动线

示范区前场动线

前场动线详解

前场动线详解

前场动线详解

前场动线详解

前场动线详解

前场动线详解

前场动线详解

主场动线详解

主场动线详解

主场动线详解

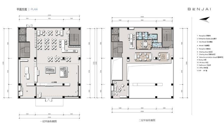
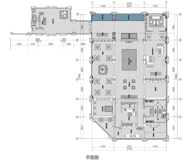
典型平面图

典型平面图

典型平面图

典型平面图

示范区主场精装风格

示范区主场建筑风格

后场动线详解

后场动线详解

示范区后场景观风格
© 版权声明
THE END
















![表情[guzhang]-灵感屋](https://www.lgwu.net/wp-content/themes/zibll/img/smilies/guzhang.gif)






暂无评论内容