- 文件格式:pdf
- 文件大小:98.40MB
内容简介:[湖北]武汉现代风示范区景观方案设计(PDF 70页)
目录:前期分析、地理区位、 建筑分析、案例分析、总体定位、设计概念、总体设计、总平面图、总平面图索引、植物设计等共70页。

自动草稿
效果图.jpg

自动草稿
武汉现代风示范区景观方案设计.jpg

自动草稿
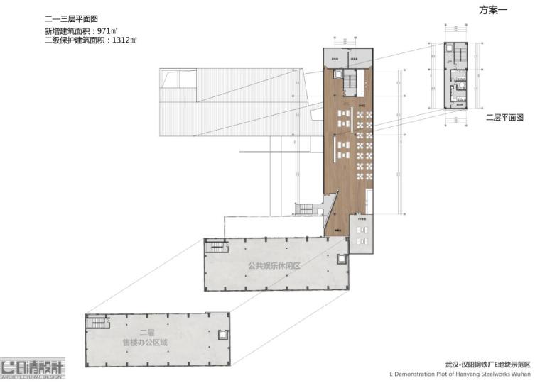
二—三层平面图.jpg

自动草稿
方案一.jpg

自动草稿
功能分析图.jpg

自动草稿
剖面示意图.jpg

自动草稿
© 版权声明
THE END












![表情[guzhang]-灵感屋](https://www.lgwu.net/wp-content/themes/zibll/img/smilies/guzhang.gif)






暂无评论内容