-
文件格式:zip
文件大小:556.05MB
-
文档类型:成套
-
项目类型:居住区景观
-
节点类型:铺装做法,种植池花池,围墙景墙,亭廊花架,坐凳座椅
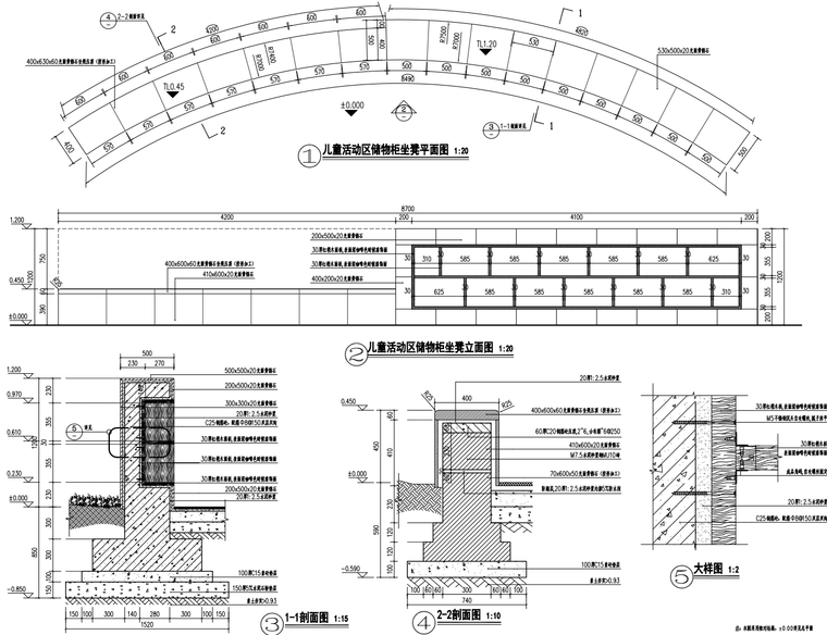
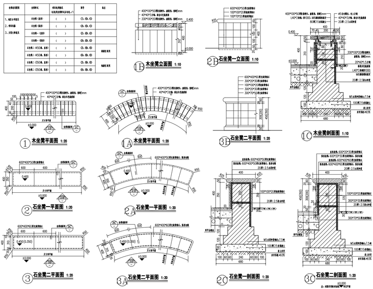
儿童活动空间标准化CAD模块
文档包含100平米、150平米、250平米、350平米、550平米、800平米案例共22个儿童活动空间图纸。图纸包含:图纸目录、索引平面图、标高平面图、铺装平面图、尺寸平面图、网格放线平面图、储物柜坐凳详图、廊架详图、穿洞墙组合详图、坐凳详图、警示牌及排水沟详图、凸起地形详图、攀爬墙详图、树池详图、洗手台详图、沙池详图、通用大样及配套设施详图。图纸格式:DWG+PDF


















© 版权声明
THE END


















![表情[tuosai]-灵感屋](https://www.lgwu.net/wp-content/themes/zibll/img/smilies/tuosai.gif)






暂无评论内容